有名建築士デザインによる
高性能規格住宅
オシャレで特徴的なデザインの南側には、たくさんの窓が取り付けられ、自然光を活かした明るい建築です。


- 家族が自然に集まる空間
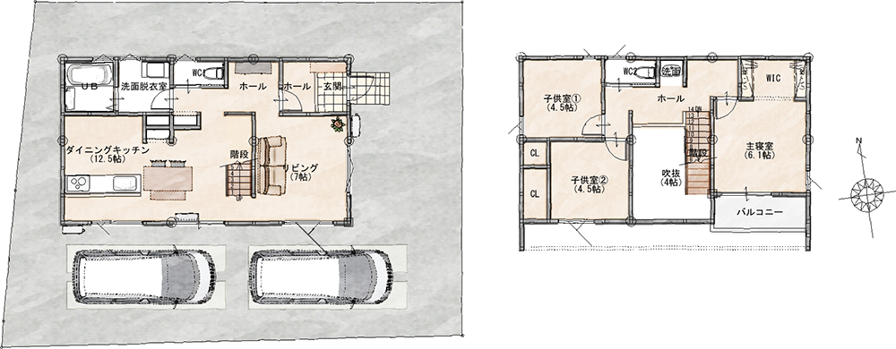
- キッチンダイニングがオープンカウンターになっているので、子供たちの勉強部屋や、家族が語り合うスペースになったりと、家族が自然に集まる工夫があります。

- 空間は遮らず開放的に
- 憧れのリビング階段は、高性能規格住宅だからこそ可能なアイテムです。スケルトン階段は壁がないため圧迫感がなく窓からの自然光も遮りません、やさしい木目がリビングのアクセントになっています。






| 価格 | 2,980万円(税込) |
|---|---|
| 物件種目 | 戸建住宅 |
| 間取り | 3LDK |
| 所在地 | 宮崎市大字新名爪96-2 |
| 土地面積 | 168.29m2(50.9坪) |
| 建物延べ面積 | 94.81m2(28.68坪) |
| 駐車場 | 有 |
| 校区 | 宮崎市立住吉小学校 宮崎市立住吉中学校 |